The Melody of Nature
listen to the call of nature


Architectural intervention is inspired by elements of Gaudi’s works. Geometrical forms and organic shapes drawn from nature are applied to the walls and roof, making a sense of landscape in the space. Glazed holes in the walls are reminiscent of Casa Mila and create an opportunity to see what is at the other side of the wall. Glass initiates spatial conversation between built and natural environments keeping a person as a witness of this process.
Dragon Skin
Marble tiles likened to dragon skin.
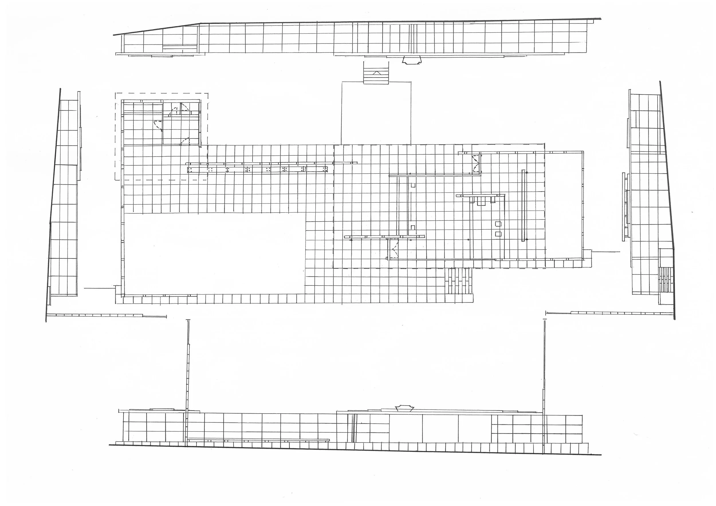
Intervention Plan
Gaudi inspired touches preserving spatial qualities.
Barcelona Pavilion Explorations





United Kingdom, London, 2019
University of the Arts London, Chelsea College of Arts